Esch-sur-Alzette

Appartement à Esch-sur-Alzette

Beschreiwung vun der Immobilie

*** À vendre – Appartement 1 chambre avec terrasse, cave et parking intérieur à Lallange ***

Lovin’home vous propose à la vente cet appartement d’environ 42m², situé en rez-de-chaussée d’une résidence bien entretenue construite en 2008 à Lallange, dans un quartier résidentiel calme et pratique.

Idéalement situé, ce bien bénéficie d’un emplacement recherché à proximité immédiate des principaux axes routiers, du centre commercial Cactus Esch-Lallange, des services du quotidien, des transports en commun, facilitant le quotidien et les déplacements.

Parfaitement adapté à un premier achat comme à un investissement immobilier, cet appartement séduit par sa distribution bien pensée et son potentiel de mise en valeur.

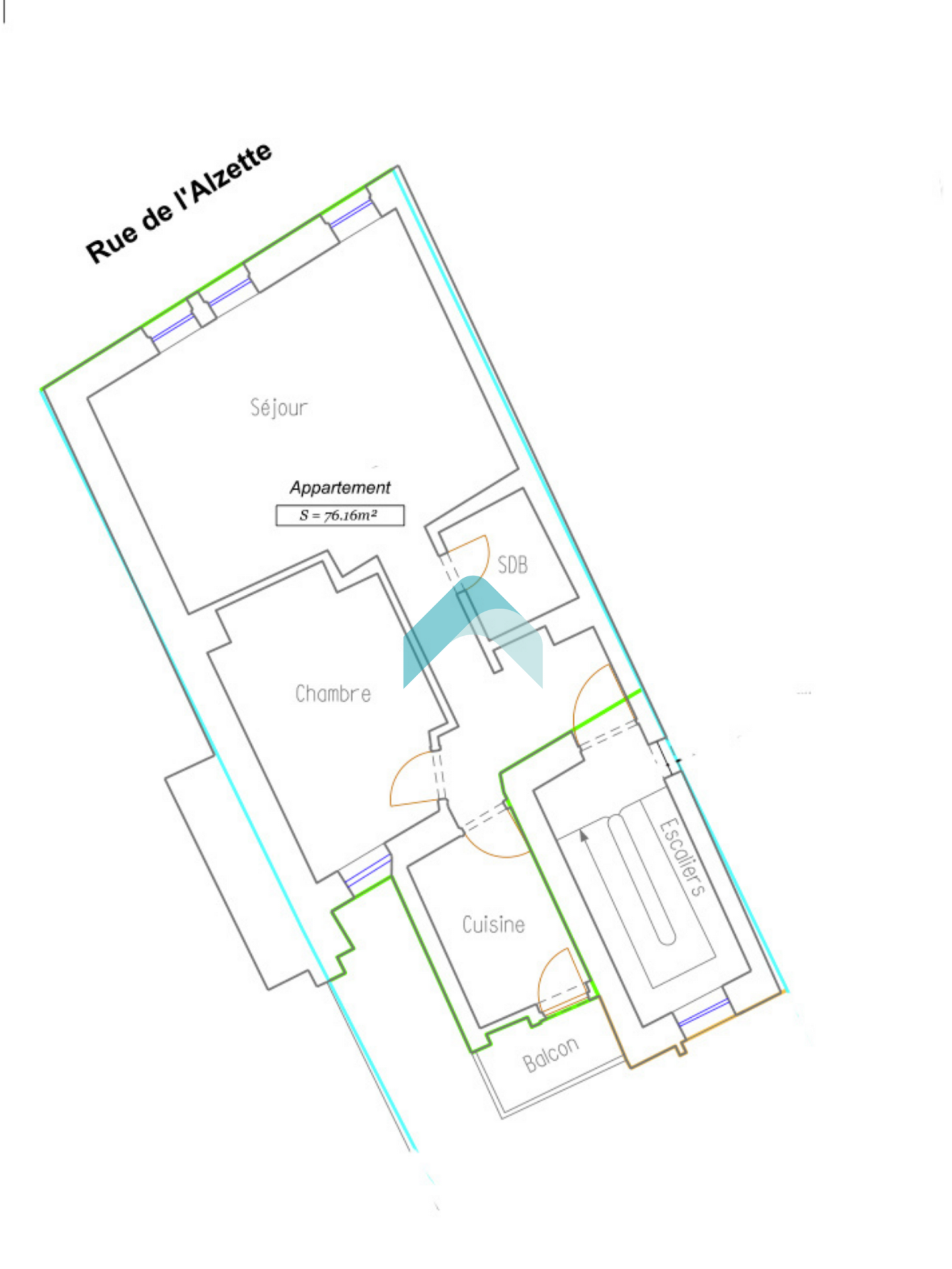
Le bien se compose comme suit :
✦ Hall d’entrée avec porte de sécurité
✦ Cuisine séparée entièrement équipée
✦ Séjour avec accès direct à une terrasse d’environ 8 m²
✦ Chambre avec grand placard intégré
✦ Salle de douche avec cabine de douche, lavabo et WC

Les atouts supplémentaires :
• Cave privative
• Emplacement de parking intérieur
• Ascenseur dans la résidence
• Résidence construite en 2008
• Chauffage au sol avec régulateur de température
• Bien en bon état général

Cet appartement offre une base saine et agréable, avec un potentiel de rafraîchissement léger permettant de le personnaliser facilement selon ses goûts.
Des visuels de projection après rafraîchissement peuvent accompagner la présentation du bien afin d’aider les acquéreurs à mieux s’y projeter.

Une belle opportunité pour acquérir un bien fonctionnel , bien situé et offrant un confort appréciable au quotidien.

Pour plus d’informations ou pour organiser une visite, contactez-nous au (+352) 621 274 674 ou par e-mail à contact@lovinhome.lu.

Kontaktéiert eis

Verkaf

Referenz: LHV-120B

1

42.00 m²

1

Places de parking 1

395 000 €

Deelen

Eegeschaften

Energie-Pass
Energie-Klasse e
Thermesch Isolatioun e
Intérieur
buanderie jo
Baussent
terrasse jo
surface terrasse 8
Zëmmeren
salles de bain 1
cave jo
Sécherheet
videophone jo
Komfort
ascenseur jo
volets electriques jo
volets roulants jo
Eco Energie
chauffage au sol jo
Parkplazen
parking souterrain 1
Verschiddenes
achat type ancien
annee de construction 2008

Kontaktéiert eis